 |
 |
Variant de Vallbona i
Bifurcació Aigües
Soterrament a Montcada i Reixac |
 |
Les obres
d'integració del ferrocarril al seu pas per
Montcada i Reixac contempla l'execució de dos subtrams:
- Projecte de construcció de la variant de Vallbona i Bifurcació
Aigües (Barcelona), entre els PK 0+000 i 1+520
- Projecte de soterrament de la línia R2 al seu pas pel casc
urbà de Montcada i Reixac, entre els PK 1+520 i 5+508
L'execució de les obres corresponents al tram de la variant de
Vallbona està previst completar-la abans que la del
soterrament de la R2 a Montcada i Reixac. |
 |
 |
 |
|
Planta general del tram
Variant de Vallbona i Bifurcació Aigües |
Planta general del tram soterrament R2 Montcada i
Reixac |
|
| TRAM VARIANT DE VALLBONA I BIFURCACIÓ AIGÜES |
 |
 |
|
Planta general i perfil
longitudinal del tram
Variant de Vallbona i Bifurcació Aigües |
| Font dels plànols: PROYECTO DE
CONSTRUCCIÓN DEL SOTERRAMIENTO DE LA R2 DE CERCANÍAS DE
BARCELONA A SU PASO POR EL CASCO URBANO DE MONTCADA I REIXAC
(BARCELONA). VARIANTE DE VALLBONA Y BIFURCACIÓN AGUAS |
El projecte de la variant de
Vallbona i bifurcació Aigües discorre entre el nus de la
Trinitat i el barri de Vallbona de Montcada i Reixac i la
solució consisteix en realitzar una variant als traçat de les
dues línies d'ample ibèric existents amb els següents objectius:
- Canvi del traçat en planta de la línia
Barcelona-Girona-Portbou, ubicant-la en paral·lel a la línia
d'alta velocitat (LAV) per tal de millorar la geometria del seu
traçat, eliminar l'actual corba i substituir-la per un tram nou
de característiques geomètriques i idèntiques a la LAV.
- Mitjançant la disposició dels necessaris aparells de via,
modificar la connexió dels ramals de Bifurcació Aigües eliminat
l'actual cisallament i, per tant, amb una millora notable de la
capacitat i seguretat de la circulació.
- Alliberar la superfície que queda actualment aïllada per les
plataformes d'ample convencional i la LAV.
La solució del projecte preveu el
soterrament de part de la línia Barcelona-Portbou ("línia R2").
Els nous ramals de Bifurcació Aigües, tant pel costat mar com
pel costat muntanya, s'inicien a les vies exteriors futures de
la R2 a l'entorn de les instal·lacions d'Aigües de Barcelona
(edifici Central Besòs). El ramal del costat mar es troba en
primer lloc en paral·lel a la LAV, creuant posteriorment per
sobre la R2, just després que aquesta R2 s'hagi soterrat. Els
dos nous ramals de Bifurcació Aigües entronquen amb les vies
existents abans del pas inferior del carrer Torre Vella. El
futur traçat a projectar de la R2 comença abans de finalitzar la
zona coberta de la pèrgola del nus de la Trinitat, finalitzant
al creuament amb el torrent Tapioles on les futures vies central
i costat mar de la R2 es troben en rampa. Aquest tram en rampa
desapareixerà un cop es connecti amb el tram de soterrament de
Montcada i Reixac posterior. Els futurs ramals de la R2, central
i costat mar, surten a la superfície un cop han creuat sota el
futur ramal de Bifurcació Aigües costat mar, ja que en el futur
aquestes dues vies estaran soterrades i seguiran cap al centre
de Montcada i Reixac en túnel. Del ramal Bifurcació Aigües
costat muntanya en surt una quarta via que connecta amb la
futura via R2 costat muntanya a l'alçada del Punt Verd de
Vallbona. Aquesta quarta via es preveu per poder mantenir el
servei en via doble quan s'estigui executant el soterrament de
Montcada i Reixac. |
 |
 |
 |
| TRAM SOTERRAMENT R2 MONTCADA I REIXAC |
 |
 |
 |
|
Planta general i perfil
longitudinal del tram
Soterrament R2 Montcada i Reixac |
|
Font
dels plànols: PROYECTO DE CONSTRUCCIÓN DEL
SOTERRAMIENTO DE LA LÍNEA R2 DE CERCANÍAS DE
BARCELONA A SU PASO POR EL CASCO URBANO DE MONTCADA
I REIXAC (BARCELONA)
(+) |
| El projecte té l'objectiu de soterrar
la traça de la línia Barcelona-Portbou ("línia R2") al seu pas
pel casc urbà de Montcada i Reixac, així com eliminar els dos
passos a nivell de vianants i vehicles als carrers Bogatell i
Pasqual. El futur corredor de la R2 es composa d'una triple via
general al llarg de tota la zona d'actuació per tal de millorar
l'explotació ferroviària. El projecte defineix un tram de 1,1 km
de túnel executat mitjançant mètodes convencionals (en mina) que
comença a 20 metres des de l'origen de l'actuació, finalitzant
abans de l'entrada al casc urbà de Montcada i Reixac, a l'alçada
aproximadament del carrer de Llevant. Seguidament el túnel es
construeix entre pantalles ("cut and cover"), tipus que es manté
fins al final de l'àmbit de projecte. La futura estació de
Montcada i Reixac soterrada tindrà andanes laterals, de manera
que la via central no tindrà andana. Passada l'estació el traçat
creua el riu Ripoll, deixant a la seva esquerra l'actual pont
metàl·lic sense que resulti afectat per les obres. Un cop passat
del riu Ripoll el nou corredor evita afectar l'escola Font Freda
i creua sobre la LAV per la llosa intermèdia aprofitant el pou
d'atac de la tuneladora que es va utilitzar per la LAV i per
sota la C-33, connectant finalment amb les vies existents al
polígon industrial Pla d'en Coll. |
|
|
| DESVIAMENTS PROVISIONALS I ESTACIONS PROVISIONALS R2 MONTCADA I REIXAC |
 |
 |
|
Planta general dels
desviaments provisionals (Fase
1 Est | Fase 2 Oest)
Soterrament R2 Montcada i Reixac |
|
Font
dels plànols: PROYECTO DE CONSTRUCCIÓN DEL
SOTERRAMIENTO DE LA LÍNEA R2 DE CERCANÍAS DE
BARCELONA A SU PASO POR EL CASCO URBANO DE MONTCADA
I REIXAC (BARCELONA)
(+) |
|
La construcció del túnel entre
pantalles entre el carrer de Llevant i l'estació actual de
Montcada i Reixac requereix desviar provisionalment les vies
existents cap al costat est (banda riu Besòs), així com ubicar
una estació provisional, per tal de mantenir el servei
ferroviari durant les obres. El pas pel pont metàl·lic sobre el
riu Ripoll es mantindrà. El desviament provisional constarà de
dues vies que ocuparan el carrer de les Aigües, aproximant-se a
la traça actual per evitar l'edifici del CAP de Montcada i
Reixac. Es preveu que els dos passos a nivell, als carrers
Pasqual i Bogatell, es mantinguin en servei durant les obres. En
una fase posterior, un cop executat part del túnel entre
pantalles, s'executa un altre desviament provisional de vies cap
a l'oest des del carrer Larramendi cap al nord, ocupant
aproximadament en planta l'ubicació actual de les vies (amb
algunes lleugeres modificacions) però ubicades ja damunt de la
nova llosa del túnel. |
|
ESTACIÓ PROVISIONAL EST |
|
L'estació provisional Est de Montcada i Reixac disposa de les
dues vies generals amb andanes laterals de 210 metres de
longitud i 4 metres d'amplada. S'executa un nou pas superior amb
accés pel carrer de Rocamora, que salva no només el pas entre
les dues vies provisionals en servei sinó també l'àmbit on es
construeix el túnel entre pantalles. L'accés a aquest pas
superior es pot fer per escales fixes i rampes. A més, s'ubica
un accés directe mitjançant rampes des del carrer Guadiana, a
l'est de l'àmbit d'actuació. Es disposen de barreres tarifàries
de control d'accés als extrems de les andanes provisionals pel
costat Granollers, on també hi ha marquesines mètàl·liques per
aixoplugar els viatgers. A l'extrem de les andanes costat
Barcelona hi ha escales com a sortides d'emergència. No s'ubica
cap nou edifici de viatgers provisional o similar, havent
d'utilitzar l'edifici de viatgers històric existent. |
 |
 |
| ESTACIÓ PROVISIONAL OEST |
| L'estació provisional Oest de Montcada
i Reixac disposa de les dues vies generals amb andanes laterals
de 210 metres de longitud i 4 metres d'amplada. S'aprofita el
pas superior de l'estació provisional est, amb accés pel carrer
de Rocamora, que salva no el pas entre les dues vies
provisionals en servei. L'accés a aquest pas superior es pot fer
per escales fixes i rampes. A més, s'ubica un accés directe
mitjançant rampes des del carrer Guadiana, a l'est de l'àmbit
d'actuació. Es disposen de barreres tarifàries de control
d'accés als extrems de les andanes provisionals pel costat
Granollers, on també hi ha marquesines mètàl·liques per
aixoplugar els viatgers. A l'extrem de les andanes costat
Barcelona hi ha escales com a sortides d'emergència. No s'ubica
cap nou edifici de viatgers provisional o similar, havent
d'utilitzar l'edifici de viatgers històric existent. |
 |
 |
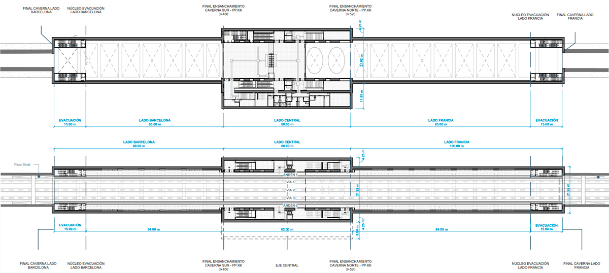
| NOVA ESTACIÓ SOTERRADA R2 MONTCADA I REIXAC |
|
 |
 |
|
Plantes generals de la
nova estació soterrada de
Montcada i Reixac |
|
Font
dels plànols: PROYECTO DE CONSTRUCCIÓN DEL
SOTERRAMIENTO DE LA LÍNEA R2 DE CERCANÍAS DE
BARCELONA A SU PASO POR EL CASCO URBANO DE MONTCADA
I REIXAC (BARCELONA)
(+) |
| La nova estació de Montcada i Reixac
soterrada s'ubicarà al mateix emplaçament que l'actual, entre el
carrer Bogatell i les proximitats del carrer Rocamora. El
projecte ubica un accés tangent a la caverna de l'estació
(dimensions 240 x 20 m), constituit per una sèrie de volums que
permetin salvar la diferència de cota entre el carrer de
Guadiana i el nou boulevard sobre la llosa. La nova ubicació de
l'accés a l'estació soterrada de Montcada i Reixac s'ubica a la
posició de l'antiga subestació elèctrica, aproximant-se a la
zona d'aparcament i als serveis (kiss&ride i taxis). El nou
edicle d'accés tindrà doncs un accés des de la llosa sobre el
soterrament (cota +35,5) i un altre accés des del carrer
Guadiana amb Vilanova (cota +34,0), enllaçats per l'interior de
l'edicle mitjançant una escala fixa i un ascensor. El vestíbul
de l'estació s'ubicarà a un nivell inferior (cota +28.0), rebent
llum natural a través d'uns vidres trepitjables al terra situats
a l'accés des de la llosa. Entre el nivell vestíbul i l'accés
del carrer Guadiana hi haurà una escala fixa, dues escales
mecàniques (una de pujada i una de baixada) i el mateix ascensor
des de la cota de la llosa superior del túnel, que també té
parada a la cota d'accés pel carrer Guadiana. El vestíbul
disposarà de les màquines de venda de bitllets, un punt
d'atenció al client (AVI de Renfe) i les barreres tarifàries de
control d'accés entre d'altres dependències. Els trens circulen
pel nivell més profund (cota +21,0) format per tres vies i dues
andanes laterals de 210 metres de longitud i 3,85 d'amplada, de
manera que la via central no té andana. Entre el vestíbul i
cadascuna de les andanes hi ha una escala fixa, dues escales
mecàniques (una de pujada i una de baixada) i una escala fixa.
Als dos extrems de les andanes hi haurà sortides d'emergència
directes al nivell carrer. |
|
Fotomuntatges nova estació de Montcada i Reixac: |
|
|
|
|
 |
 |
 |
 |
 |
| Vista aèria
àmbit |
Vista aèria
àmbit |
Accés des de
carrer Guadiana, cota 34,0 |
Accés des de
llosa, cota 35,5 |
Accés des de
llosa, cota 35,5 |
 |
 |
 |
 |
 |
| Edicle des
del nivell c.Guadiana, cota 34,0 |
Vestíbul,
cota 28,0 |
Vestíbul,
cota 28,0 |
Andanes |
Andanes |
|
 |
FOTOS DE LES
OBRES |
| Bernat Borràs - prohibida la
reproducció de les fotos sense el permís de l'autor |
 |
 |
 |
 |
|
Unitat Civia amb un R2 de Castelldefels a
Granollers pel pas a nivell del carrer Pasqual,
amb la nova variant provisional est en
construcció a un costat (setembre 2025) |
Civia i espai per a la variant provisional de la
banda est, amb l'edifici del CAP on la variant
haurà d'acostar-se a l'espai on es construirà el
nou túnel (setembre 2025) |
Civia sortint de Montcada i Reixac des del pas a
nivell del carrer Bogatell. Una grua de grans
dimensions participa en la construcció (setembre
2025) |
Pas a nivell del carrer Bogatell, on ja s'han
ubicat les dues vies del desviament provisional
banda est de la traça actual (setembre 2025) |
 |
 |
 |
 |
|
Una altra vista de les dues vies del futur
desviament provisional i al fons l'espai on
s'ubicarà l'estació provisional (setembre 2025) |
Unitat 447 amb un servei R11 a Portbou entre els
passos a nivell del carrer Pasqual i el carrer
Bogatell, amb els nous carrils ja enfocant cap a
la variant provisional banda est (setembre 2025) |
Tren de la línia R11 al pas a nivell del carrer
Bogatell, just al costat de l'estació de
Montcada i Reixac pel costat Barcelona (juliol
2025) |
Subestació elèctrica, on s'ubicarà l'estació
provisional banda est de la traça, ja que
posteriorment caldrà ubicar una segona estació
provisional damunt la llosa a la traça actual
(juny 2025) |
 |
 |
 |
 |
|
Civia des de l'avinguda de la Ribera, tram on el
túnel s'executa en mina (juny 2025) |
Tren a la recta de Montcada i Reixac, amb les
diverses instal·lacions per a l'execució del
túnel en mina d'aquest tram (juny 2025) |
Civia al pas a nivell del carrer Bogatell, amb
la tercera via de l'estació de Montcada ja
parcialment aixecada (juny 2025) |
Unitats sèrie 449 amb un R11 a Figueres al seu
pas per Montcada i Reixac entre els dos passos a
nivell (juny 2025) |
|